
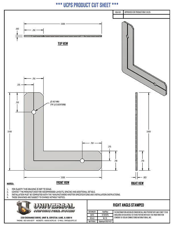
Right Angle Stamped

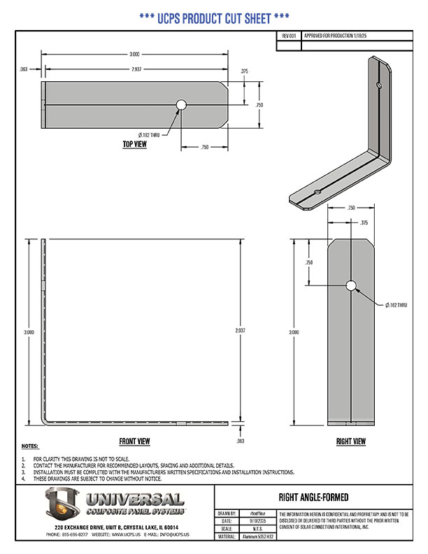
Right Angle Formed
Project Spotlight: Sephora Hawthorn Row
DOCUMENTATION
Universal Composite Panels Digital Resources.
The one stop hub for all your information documentation from fabrication to installation.
Universal Composite Panels Digital Resources.
The one stop hub for all your information documentation from fabrication to installation.